
Tartu linnas Aruküla tee 30 krundi osa detailplaneering on kehtestatud
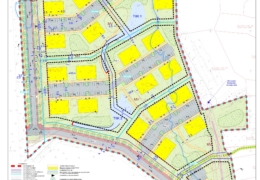
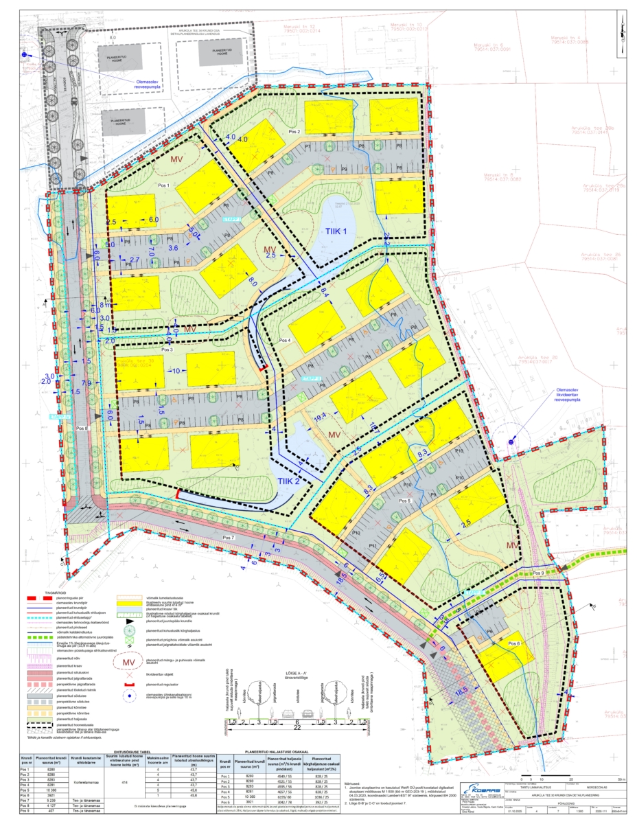
19.03.2026 Tartu Linnavolikogu otsusega nr 25 kehtestati Aruküla tee 30 krundi osa detailplaneering. Detailplaneeringu koostamise korraldaja oli Tartu Linnavalitsus, huvitatud isik Nordecon AS ning planeeringu ja keskkonnamõju strateegilise hindamise koostaja Kobras OÜ. Planeeringuga on kavandatud jõudsalt arenevasse elamualale 3-5 kortermajaga hoonegrupid, mis lähtuvad peamiselt Aruküla tee 30 detailplaneeringu arhitektuurivõistluse võidutööst „Mäealuse“, võttes ka osaliselt arvesse töö „Käpp“ ja „Rabametsa“ lahenduses olevaid ideid. Kavandatuga täiendatakse Kvissentali piirkonnas väljakujunenud hoonestusstruktuuri ning tänavaruumi. Planeeringualaga külgnevad kõnniteed on osa Tartu linna jalg- ja jalgrattateede võrgustikust ning kavandatuga luuakse inimmõõtmeline tänavaruum, kus jalgtee on ümbritsevast eraldatud haljasribaga ning jalgratturitele on eraldatud ruum sõiduteel. Hoonete vahele on kavandatud sidus puhke- ja haljasala koos mänguväljakute, kõnniteede, haljastuse, tiikide ja muude arhitektuursete väikevormidega. Kavandatud tiikide süsteem on oluline nii säästliku sademeveesüsteemi kui ka elurikkuse seisukohast.



